広田町字大祝
詳細
- 説明
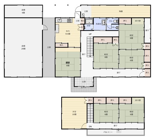
- 各部屋がゆったりとした広さを確保したお家です。南向きで建物の前に遮るものがないため、日中は明るい陽射しが室内までしっかりと届きます。敷地内には約28帖の倉庫があり、趣味の作業スペースや収納、事業用途など幅広く活用可能です。また、家庭菜園を楽しめる畑も備えており、自然を身近に感じながら暮らせる環境が魅力です。和風の落ち着いた外観に対し、室内には洋風の要素も取り入れられており、和洋折衷の住まいをお探しの方にもおすすめです。
- 所在地
- 陸前高田市広田町字大祝
- 価格
- 6,100,000 円
- 交通
- 「黒崎入口」バス停 徒歩9分
- 建物面積
- 247.87 m²
- 土地面積
- 880.82 m²
- 間取り
- 6LDK
- 建物構造
- 木造
- 築年月
- 昭和60年新築
- 都市計画
- 区域外
- 地目
- 宅地,畑
- 建ぺい率
- 70 %
- 容積率
- 200 %
- 接道
- 幅6mの道路に接道
- 現況
- 空家
- 設備
- 電気60A/公営水道/給湯(灯油)/汲み取り/簡易水洗トイレ/火災報知器
- 備考
- ・家財有り。(不要な物は売主負担で処分します)
・現況引渡しです。
・別途仲介手数料が掛かります。
・現況と異なる場合は現況優先です。
・農地法第3条の許可申請が必要です。
・空き家バンク登録物件です。 - 周辺環境
- ・スーパーマルミヤ…約5.6km
・ツルハドラッグ高田アップロード店…約10.6km
・マイヤ アップルロード店…約11km
・セブン陸前高田アップロード店…約8.5km
・市立広田小学校…約2.9km
・市立高田東中学校…約10km
・国保広田診療所…約2.8km
« 一覧に戻る
Template Party CMS